ALICE MARIE EDMONDSON

Architectural Assitant Part II

Menu

Skip to content
  • ABOUT
    • KEY SKILLS
  • CAREER HISTORY
  • ARCHITECTURAL EXPERIENCE

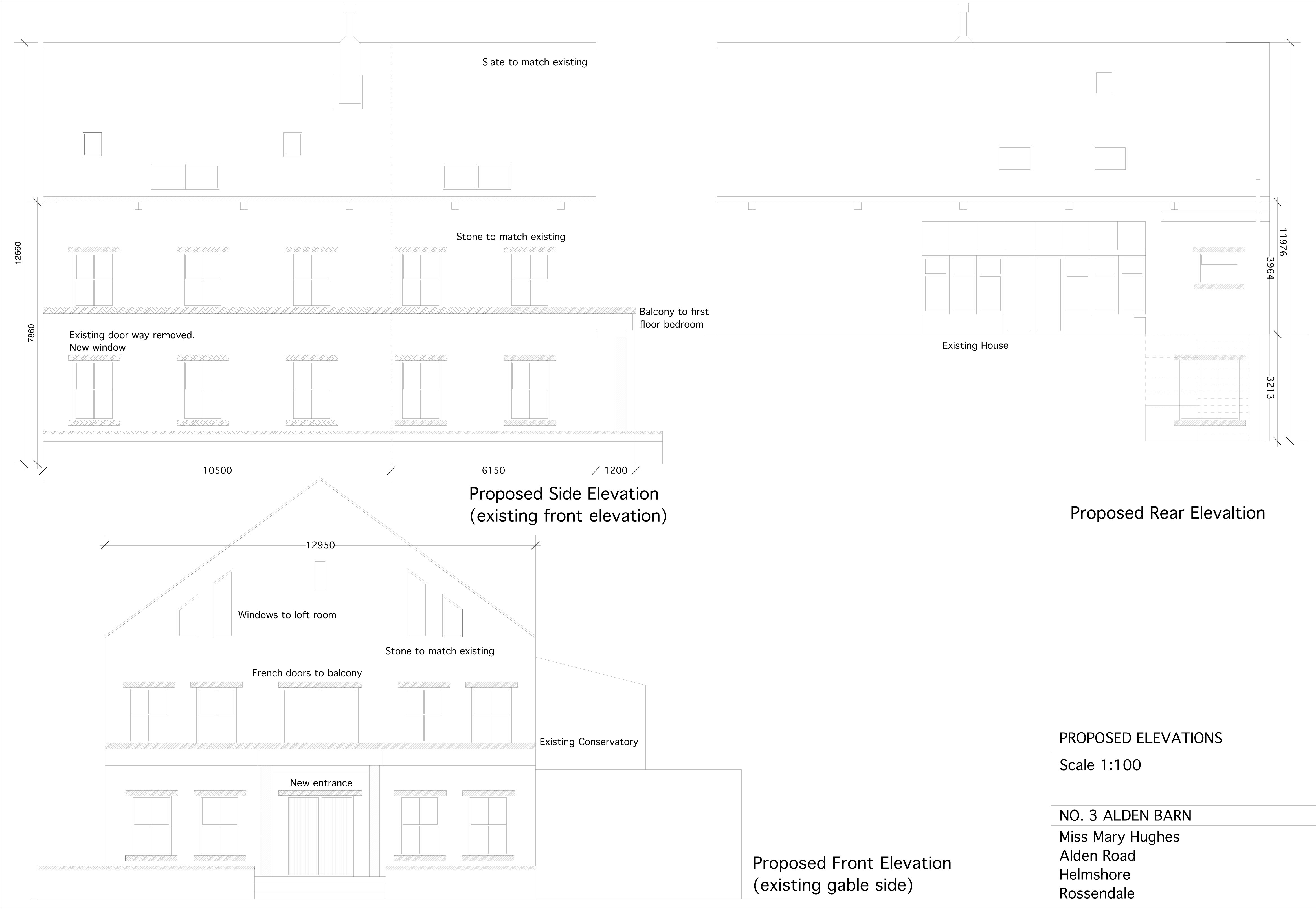
Barn Conversions

October 26, 2012
4665 × 3224
Create a free website or blog at WordPress.com.
Privacy & Cookies: This site uses cookies. By continuing to use this website, you agree to their use.
To find out more, including how to control cookies, see here: Cookie Policy
  • Subscribe Subscribed
    • ALICE MARIE EDMONDSON
    • Already have a WordPress.com account? Log in now.
    • ALICE MARIE EDMONDSON
    • Subscribe Subscribed
    • Sign up
    • Log in
    • Copy shortlink
    • Report this content
    • View post in Reader
    • Manage subscriptions
    • Collapse this bar